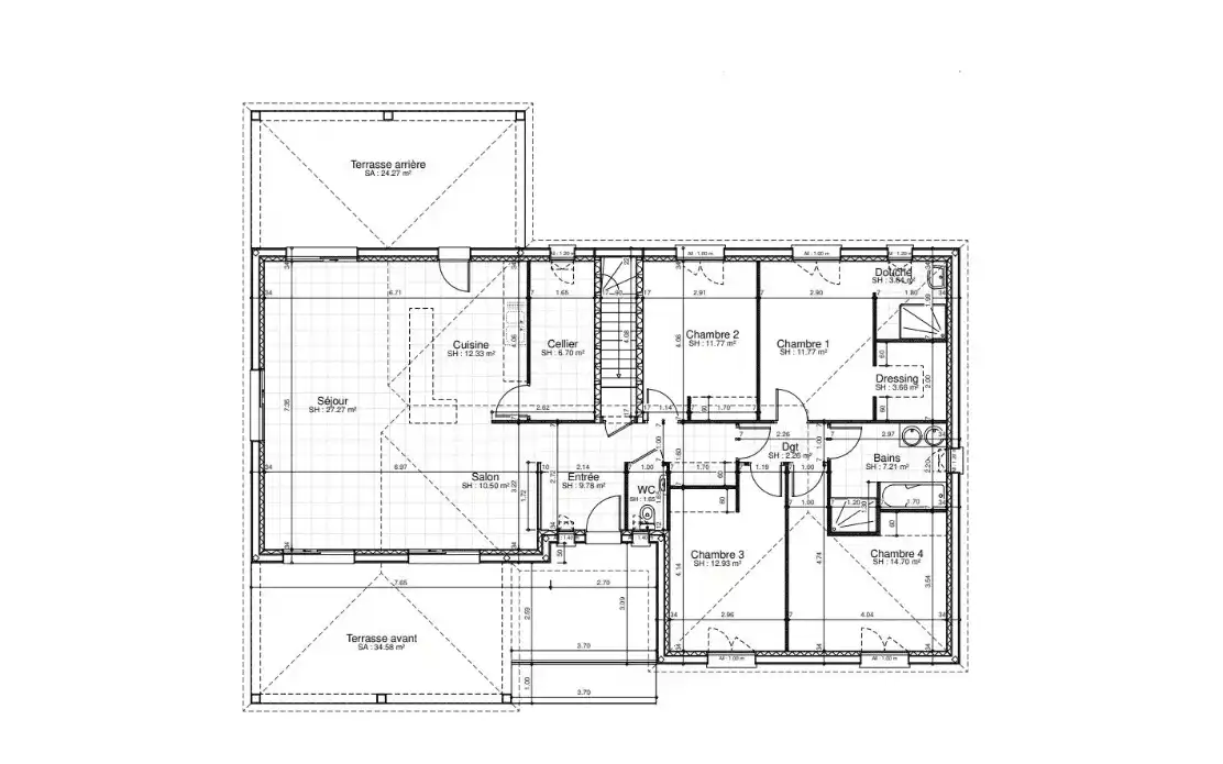
Maison “Airelle”
- Maison à étage
- 4 Chambres
- 136m²
Maison individuelle à étage
Une maison traditionnelle idéale pour les familles
Laissez-vous séduire par le charme intemporel d’une maison traditionnelle avec étage, conçue pour répondre à toutes vos attentes. Cette magnifique maison familiale offre des espaces adaptés pour chaque membre de la famille.
Notre bureau d’études a imaginé cette maison avec étage dotée d’une suite parentale généreuse qui vous offrira tranquillité et intimité. Elle comprend un spacieux dressing et une salle de bain attenante, offrant un confort optimal.
- 136m² Habitable
- 4 chambres dont une suite parentale
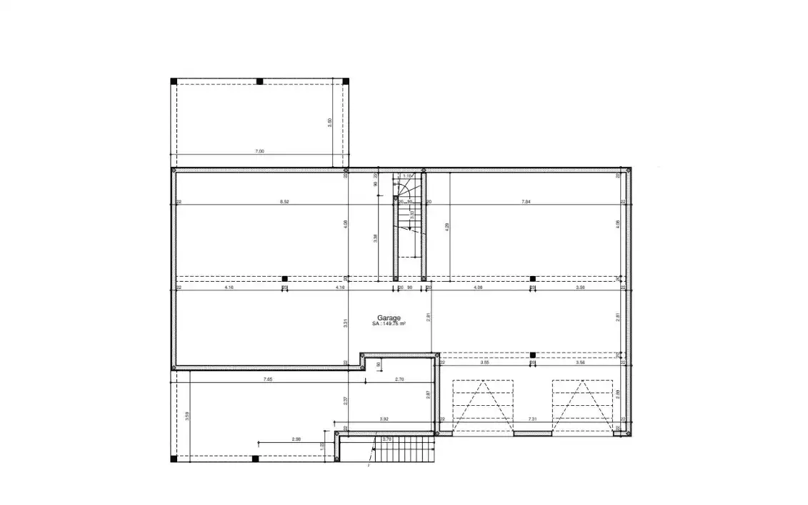
- Garage
- Cellier
- 100% personnalisable
Cette belle maison contemporaine comprend :
- 4 chambres dont une suite parentale avec dessing et salle de bain.
- Une grande pièce de vie avec un confortable espace de jour.
- Une cuisine ouverte.
- Un cellier.
- Un garage intégré.
Grâce à notre approche personnalisée, vous avez la possibilité de choisir chaque aspect de la construction de votre maison afin de créer un espace qui vous ressemble vraiment, tout étant accompagné et guidé.
De l’intérieur à l’extérieur de votre maison…tout est personnalisable.
Êtes-vous prêts à concrétiser votre rêve de maison individuelle qui répondra à tous vos besoins ?
Ne tardez pas, venez à notre rencontre :
Nous sommes Batisseurs Bourguignons, le numéro 1 de la construction de maisons individuelles dans la région.
Ensemble, construisons votre projet !










