Maison “Arnison IV”
- Maison plain pied
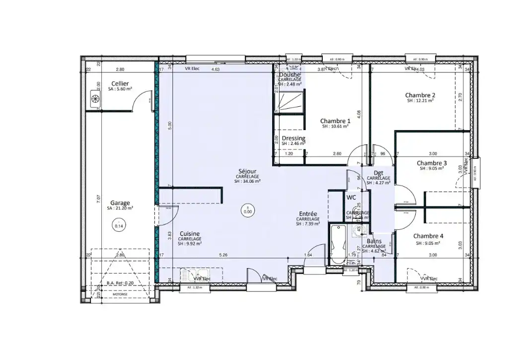
- 4 Chambres
- 107m²
Maison individuelle modèle "Arnison IV"
Une maison traditionnelle idéale pour les familles
Découvrez le charme et l’authenticité d’une maison traditionnelle de plain-pied, conçue pour répondre à toutes vos attentes. Cette magnifique maison, a parfaitement été pensée et conçue pour votre famille, offrant des espaces adaptés à chacun.
Notre bureau d’études a imaginé cette maison de plain-pied dotée d’une suite parentale généreuse qui répondra à votre besoin de tranquillité et d’intimité. Elle comprend un spacieux dressing et une salle de bain privative, offrant un confort maximum.
- 107m² Habitable
- 4 chambres dont 1 suite parentale
- Garage
- Cellier
- 100% personnalisable
Cette belle maison traditionnelle comprend :
- 3 chambres dont une suite parentale avec dressing et salle de bain.
- Une grande pièce de vie avec un confortable espace de jour.
- Une cuisine ouverte.
- Un cellier.
- Un garage intégré.
Grâce à notre approche personnalisée, vous avez la possibilité de choisir chaque aspect de la construction de votre maison afin de créer un espace qui vous ressemble vraiment, tout étant accompagné et guidé.
De l’intérieur à l’extérieur de votre maison…tout est personnalisable.
Êtes-vous prêts à concrétiser votre rêve de maison individuelle qui répondra à tous vos besoins ?
Ne tardez pas, venez à notre rencontre :
Nous sommes Batisseurs Bourguignons, le numéro 1 de la construction de maisons individuelles dans la région.
Ensemble, construisons votre projet !








