Maison “Cajou”
- Maison à étage
- 4 Chambres
- 127m²
Maison individuelle modèle "Cajou"
Une maison traditionnelle idéale pour les familles
Laissez-vous charmer par l’authenticité de cette maison traditionnelle à étage, spécialement pensée et conçue pour les familles. Cette maison contemporaine présente des lignes épurées et de grands volumes.
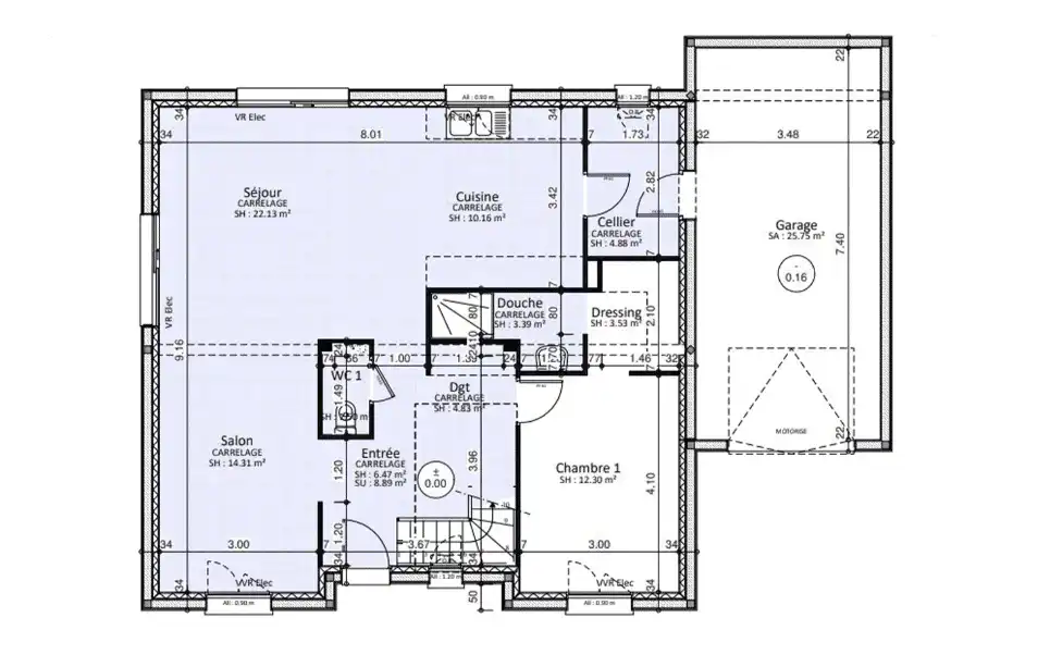
Notre bureau d’études a imaginé cette maison à étage dotée d’un garage et d’une suite parentale généreuse qui répondra à votre besoin de tranquillité et d’intimité.
- 127m² Habitable
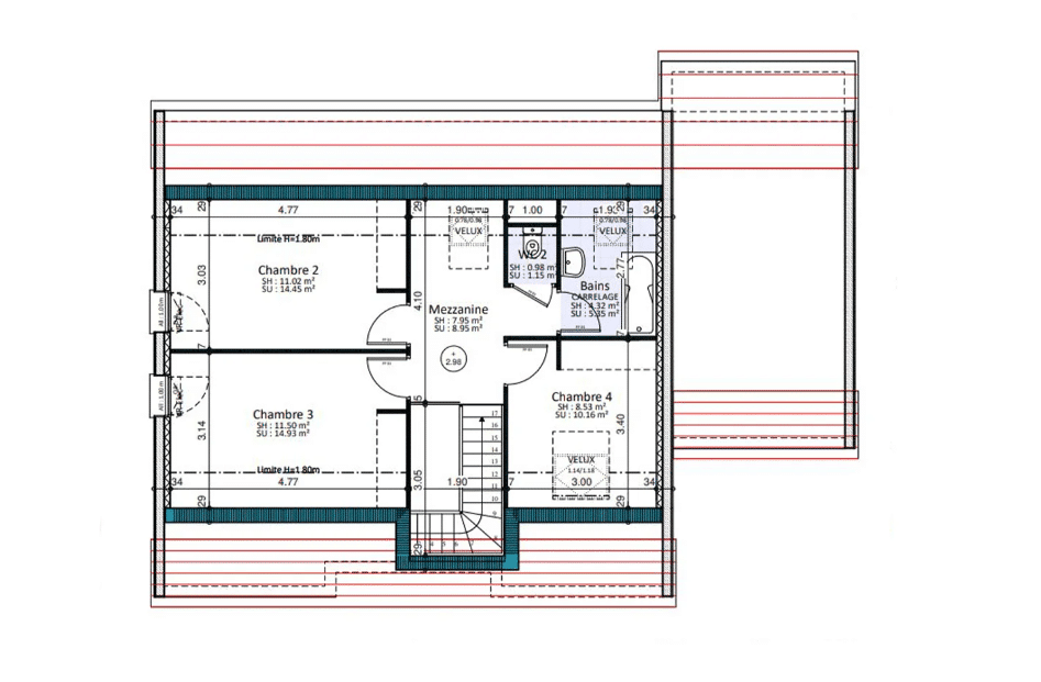
- 4 chambres dont une suite parentale
- Garage
- Cellier
- 100% personnalisable
Cette belle maison traditionnelle comprend :
- 3 chambres dont une suite parentale avec dressing et salle de bain
- Une grande pièce de vie avec un confortable espace de jour.
- Une cuisine ouverte.
- un grenier.
- Un cellier.
- Une belle mezzanine
- Un garage intégré.
Grâce à notre approche personnalisée, vous avez la possibilité de choisir chaque aspect de la construction de votre maison afin de créer un espace qui vous ressemble vraiment, tout étant accompagné et guidé.
De l’intérieur à l’extérieur de votre maison…tout est personnalisable.
Êtes-vous prêts à concrétiser votre rêve de maison individuelle qui répondra à tous vos besoins ?
Ne tardez pas, venez à notre rencontre :
Nous sommes Batisseurs Bourguignons, le numéro 1 de la construction de maisons individuelles dans la région.
Ensemble, construisons votre projet !









