Maison “Grenat”
- Maison plain pied
- 3 Chambres dont 1 suite parentale
- 132m²
Maison individuelle modèle "Grenat"
Une maison traditionnelle idéale pour les familles
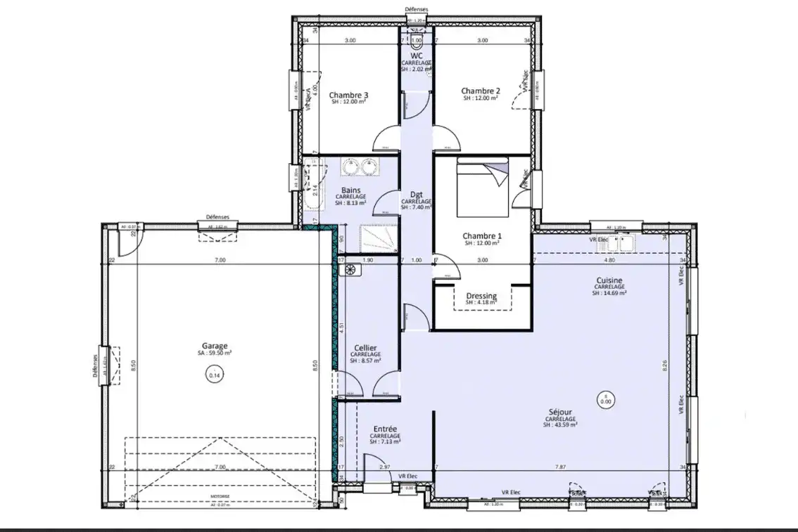
Laissez-vous séduire par le charme intemporel de cette maison traditionnelle en L de plain-pied, conçue pour répondre à toutes vos attentes.
Cette magnifique maison, pensée et créée avec soin pour vous, vous offrira des espaces adaptés à votre famille, notamment une grande pièce de vie lumineuse avec cuisine ouverte.
Notre bureau d’études a imaginé cette maison dotée d’un garage intégré, d’un cellier et d’un dressing attenant à l’une des chambres.
- 132m² Habitable
- 3 chambres dont 1 avec dressing
- Garage
- Cellier
- 100% personnalisable
Cette belle maison traditionnelle comprend :
- Trois chambres dont une chambre avec un spacieux dressing
- Une grande pièce de vie avec un confortable espace de jour.
- Une cuisine ouverte.
- Un cellier.
- Un garage intégré.
Grâce à notre approche personnalisée, vous avez la possibilité de choisir chaque aspect de la construction de votre maison afin de créer un espace qui vous ressemble vraiment, tout étant accompagné et guidé.
De l’intérieur à l’extérieur de votre maison…tout est personnalisable.
Êtes-vous prêts à concrétiser votre rêve de maison individuelle qui répondra à tous vos besoins ?
Ne tardez pas, venez à notre rencontre :
Nous sommes Batisseurs Bourguignons, le numéro 1 de la construction de maisons individuelles dans la région.
Ensemble, construisons votre projet !









