Maison “Nacre”
- Maison à étage
- 4 Chambres
- 129m²
Maison individuelle à étage
Une maison traditionnelle idéale pour les familles
Laissez-vous séduire par le charme intemporel de cette maison à la fois traditionnelle et moderne avec étage et conçue pour répondre à toutes vos attentes. Cette spacieuse maison, a été parfaitement pensée et créée pour offrir de grands espaces adaptés à chacun.
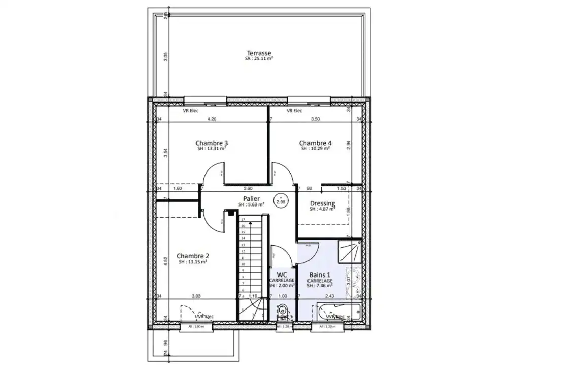
Notre bureau d’études a imaginé cette maison dotée d’une belle terrasse à l’étage et d’une suite parentale généreuse qui répondra à votre besoin de tranquillité et d’intimité. Elle comprend un spacieux dressing et une salle de bain attenante, offrant un confort optimal.
- 129m² Habitable
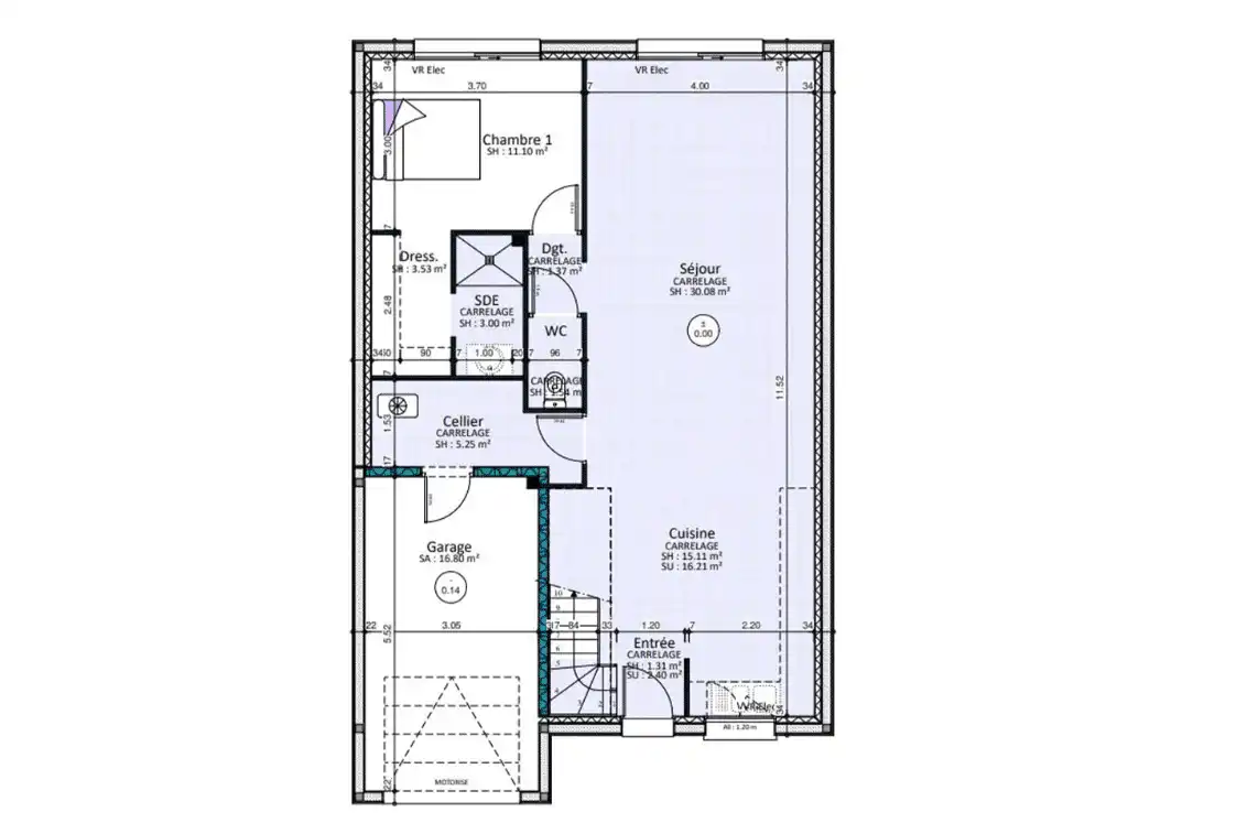
- 4 chambres dont une suite parentale
- Garage
- Cellier
- 100% personnalisable
Cette belle maison contemporaine comprend :
- 4 chambres dont une suite parentale avec dessing et salle de bain.
- Une grande pièce de vie avec un confortable espace de jour.
- Une cuisine ouverte.
- Un cellier.
- Un garage intégré.
Grâce à notre approche personnalisée, vous avez la possibilité de choisir chaque aspect de la construction de votre maison afin de créer un espace qui vous ressemble vraiment, tout étant accompagné et guidé.
De l’intérieur à l’extérieur de votre maison…tout est personnalisable.
Êtes-vous prêts à concrétiser votre rêve de maison individuelle qui répondra à tous vos besoins ?
Ne tardez pas, venez à notre rencontre :
Nous sommes Batisseurs Bourguignons, le numéro 1 de la construction de maisons individuelles dans la région.
Ensemble, construisons votre projet !








