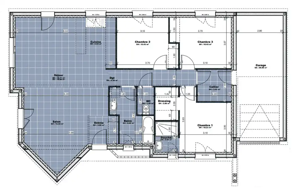
Maison “Quartz”
- Maison plain pied
- 3 Chambres
- 100m²
Maison individuelle modèle "Quartz"
Une maison moderne idéale pour les familles
Découvrez et succombez à la sophistication de cette maison moderne de plain-pied, conçue pour répondre à toutes vos attentes. Cette magnifique maison, parfaitement pensée et conçue pour les familles, offre des espaces adaptés pour chacun de ses membres.
Notre bureau d’études a imaginé cette maison de plain-pied dotée d’un garage et d’une grande suite parentale avec salle de bain attenante qui répondra à votre besoin de tranquillité et d’intimité.
- 100m² Habitable
- 3 chambres dont une suite parentale
- Garage
- Cellier
- 100% personnalisable
Cette belle maison moderne comprend :
- 3 chambres dont une suite parentale avec salle de bain
- Une grande pièce de vie avec un confortable espace de jour.
- Une cuisine ouverte.
- Un cellier.
- Un garage intégré.
Grâce à notre approche personnalisée, vous avez la possibilité de choisir chaque aspect de la construction de votre maison afin de créer un espace qui vous ressemble vraiment, tout étant accompagné et guidé.
De l’intérieur à l’extérieur de votre maison…tout est personnalisable.
Êtes-vous prêts à concrétiser votre rêve de maison individuelle qui répondra à tous vos besoins ?
Ne tardez pas, venez à notre rencontre :
Nous sommes Batisseurs Bourguignons, le numéro 1 de la construction de maisons individuelles dans la région.
Ensemble, construisons votre projet !








