Maison “Sureau”
- Maison à étage
- 4 Chambres
- 142m²
Maison individuelle à étage
Une maison traditionnelle idéale pour les familles
Laissez-vous séduire par le charme intemporel d’une maison traditionnelle avec étage, conçue pour répondre à toutes vos attentes. Cette magnifique maison, parfaitement pensée, propose des espaces parfaitement adaptés à chacun de ses occupants.
Notre bureau d’études a imaginé cette maison avec étage intégrant une vaste suite parentale, idéale pour profiter de moments de calme et d’intimité. Avec son grand dressing et sa salle de bain privative, elle vous offre un confort absolu.
- 142m² Habitable
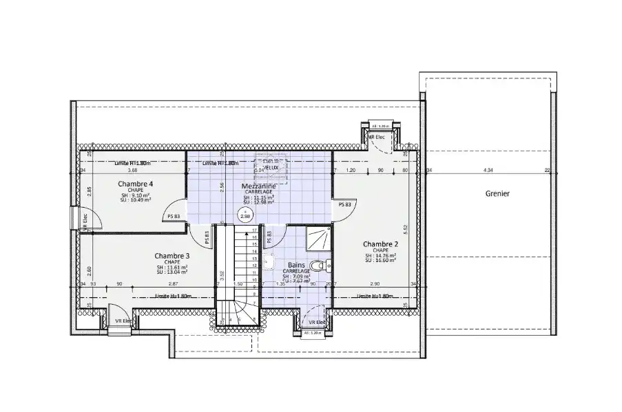
- 4 chambres dont une suite parentale
- Garage
- 100% personnalisable
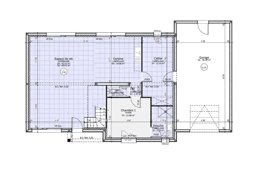
Cette belle maison contemporaine comprend :
- 4 chambres dont une suite parentale avec dressing et salle de bain.
- Une grande pièce de vie avec un confortable espace de jour.
- Une cuisine.
- Un cellier
- Une belle mezzanine.
- Un garage intégré.
Grâce à notre approche personnalisée, vous avez la possibilité de choisir chaque aspect de la construction de votre maison afin de créer un espace qui vous ressemble vraiment, tout étant accompagné et guidé.
De l’intérieur à l’extérieur de votre maison…tout est personnalisable.
Êtes-vous prêts à concrétiser votre rêve de maison individuelle qui répondra à tous vos besoins ?
Ne tardez pas, venez à notre rencontre :
Nous sommes Batisseurs Bourguignons, le numéro 1 de la construction de maisons individuelles dans la région.
Ensemble, construisons votre projet !








