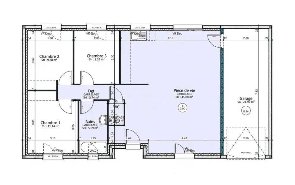
Maison “Seille”
- Maison plain pied
- 3 Chambres
- 87m²
Maison individuelle modèle "Seille"
Une maison traditionnelle idéale et confortable
Laissez-vous séduire par la simplicité et la praticité d’une maison traditionnelle de plain-pied, conçue pour répondre à toutes vos attentes. Cette maison individuelle, parfaitement pensée et conçue allie confort et fonctionnalité à un prix accessible.
- 91m² Habitable
- 3 chambres
- Garage
- 100% personnalisable
Cette belle maison traditionnelle comprend :
- 3 chambres.
- Une grande pièce de vie avec un confortable espace de jour.
- Une cuisine ouverte sur le séjour.
- Un garage intégré.
Grâce à notre approche personnalisée, vous avez la possibilité de choisir chaque aspect de la construction de votre maison afin de créer un espace qui vous ressemble vraiment, tout étant accompagné et guidé.
De l’intérieur à l’extérieur de votre maison…tout est personnalisable.
Êtes-vous prêts à concrétiser votre rêve de maison individuelle qui répondra à tous vos besoins ?
Ne tardez pas, venez à notre rencontre :
Nous sommes Batisseurs Bourguignons, le numéro 1 de la construction de maisons individuelles dans la région.
Ensemble, construisons votre projet !







