Maison “Tille”
- Maison plain pied
- 3 Chambres
- 91m²
Maison individuelle modèle "Tille"
Une maison traditionnelle idéale pour les familles
Découvrez le charme intemporel d’une maison traditionnelle de plain-pied, conçue pour répondre à toutes vos attentes. Cette magnifique demeure, soigneusement pensée pour les familles, offre des espaces adaptés pour chaque membre.
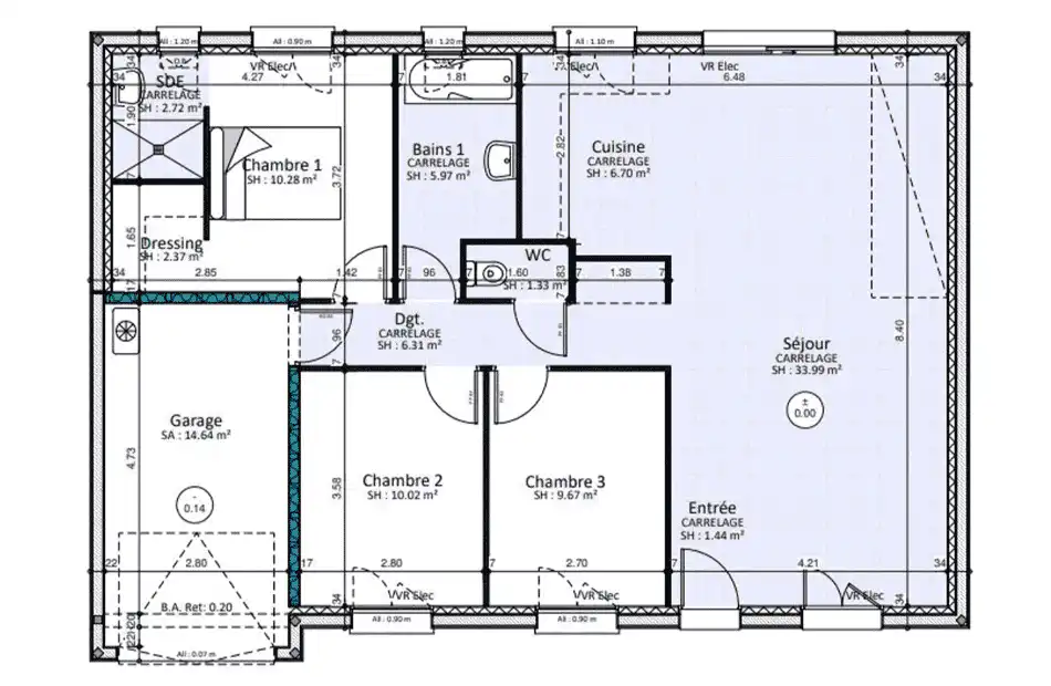
Notre bureau d’études a imaginé cette maison de plain-pied dotée d’une suite parentale généreuse idéale pour profiter de moments de calme et d’intimité. Elle comprend un spacieux dressing et une salle de bain attenante, offrant un confort optimal.
- 91m² Habitable
- 3 chambres dont 1 suite parentale
- Garage
- 100% personnalisable
Cette belle maison traditionnelle comprend :
- 3 chambres dont une suite parentale avec dressing et salle de bain.
- Une grande pièce de vie avec un confortable espace de jour.
- Une cuisine ouverte.
- Un garage intégré.
Grâce à notre approche personnalisée, vous avez la possibilité de choisir chaque aspect de la construction de votre maison afin de créer un espace qui vous ressemble vraiment, tout étant accompagné et guidé.
De l’intérieur à l’extérieur de votre maison…tout est personnalisable.
Êtes-vous prêts à concrétiser votre rêve de maison individuelle qui répondra à tous vos besoins ?
Ne tardez pas, venez à notre rencontre :
Nous sommes Batisseurs Bourguignons, le numéro 1 de la construction de maisons individuelles dans la région.
Ensemble, construisons votre projet !








