Nos bureaux seront fermés les 30 et 31 décembre 2025

Nous vous recevons du lundi au vendredi de 9h à 12h et de 14h à 18h sauf le vendredi : 17h

Le samedi sur rendez-vous

Tel : 03 80 53 96 96

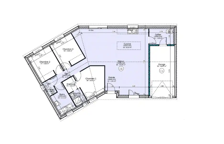
Maison “Vouges”

Valeurs énergétiques de votre future maison

Maison individuelle modèle "Vouges"

Une maison traditionnelle idéale pour les familles

Laissez-vous séduire par le charme intemporel d’une maison traditionnelle de plain-pied, conçue pour répondre à toutes vos attentes. Cette magnifique maison, parfaitement pensée pour les familles, offre des espaces adaptés pour chaque membre.
Notre bureau d’études a imaginé cette maison de plain-pied dotée d’une suite parentale généreuse qui répondra à votre besoin de tranquillité et d’intimité. Elle comprend un spacieux dressing et une salle de bain attenante, offrant un confort optimal.

Découvrez d'autres modèles
Nom
E-mail
RGPD
=
Formulaire de contact
Step 1 of 4
Que voulez-vous faire ?