Maison “Bergamotte”
- Maison à étage
- 3 Chambres
- 115m²
Maison contemporaine à étage
Une maison moderne idéale pour les familles
Laissez-vous charmer par la sophistication d’une maison moderne à étage, conçue pour répondre à toutes vos exigences. Cette magnifique maison à l’architecture originale a été pensée avec soin pour les familles, offrant de grands espaces spécialement lumineux et adaptés à chacun.
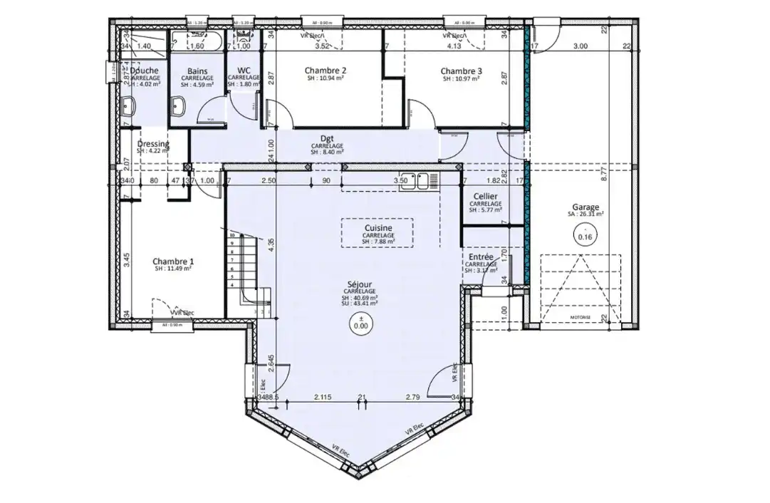
Notre bureau d’études a imaginé cette maison à étage avec une suite parentale généreuse qui répondra à votre besoin de calme et d’intimité. Vous y trouverez une salle de bain attenante, offrant un confort optimal.
- 115m² Habitable
- 3 chambres dont une suite parentale
- Garage
- 100% personnalisable
Cette belle maison contemporaine comprend :
- 3 chambres dont une suite parentale avec salle de bain.
- Une grande pièce de vie avec un confortable espace de jour.
- Une cuisine ouverte.
- Un garage intégré.
Grâce à notre approche personnalisée, vous avez la possibilité de choisir chaque aspect de la construction de votre maison afin de créer un espace qui vous ressemble vraiment, tout étant accompagné et guidé.
De l’intérieur à l’extérieur de votre maison…tout est personnalisable.
Êtes-vous prêts à concrétiser votre rêve de maison individuelle qui répondra à tous vos besoins ?
Ne tardez pas, venez à notre rencontre :
Nous sommes Batisseurs Bourguignons, le numéro 1 de la construction de maisons individuelles dans la région.
Ensemble, construisons votre projet !









