Maison “Brookite”
- Maison à étage
- 4 Chambres
- 145m²
Maison individuelle à étage
Une maison moderne idéale pour les familles
Découvrez la sophistication de cette maison moderne à étage, pensée et conçue avec soin pour répondre à toutes vos attentes. Cette magnifique maison propose de grands espaces adaptés à chacun des membres de votre famille.
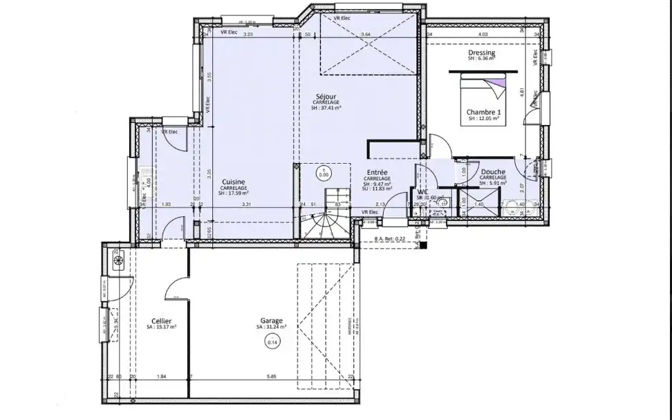
Notre bureau d’études a imaginé cette maison à étage dotée d’un grand garage, d’un cellier et d’une généreuse suite parentale avec dressing et salle de bain privative.
- 145m² Habitable
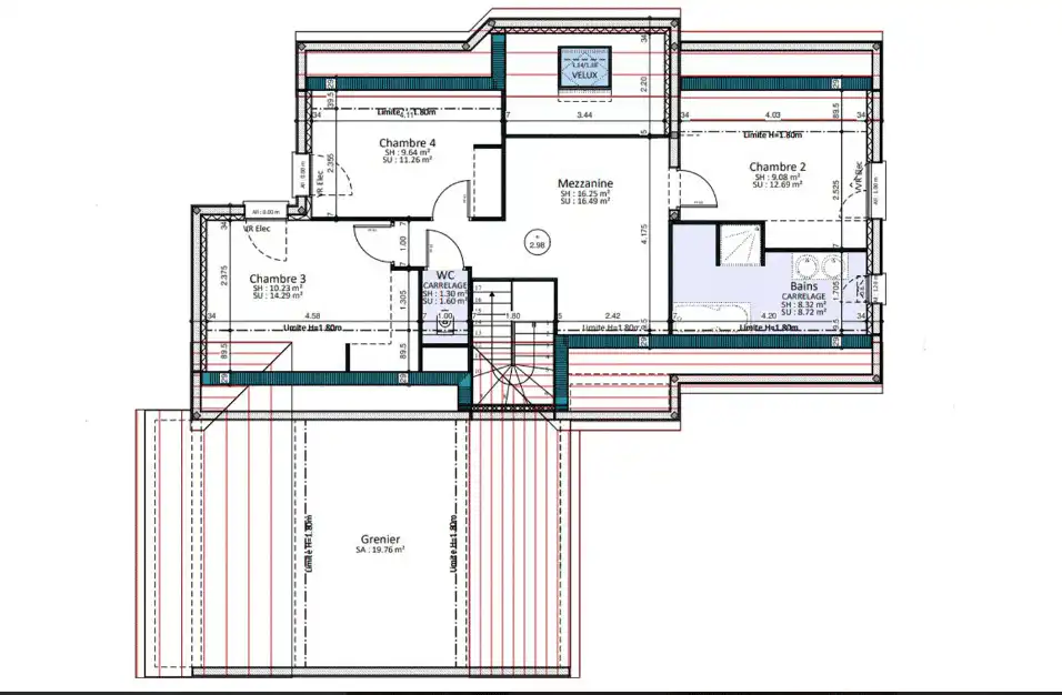
- 4 chambres dont une suite parentale
- Garage
- Cellier
- 100% personnalisable
Cette belle maison traditionnelle comprend :
- 3 chambres dont une suite parentale avec salle de bain
- Une grande pièce de vie avec un confortable espace de jour.
- Une cuisine ouverte.
- un grenier.
- Un cellier.
- Une belle mezzanine
- Un garage intégré.
Grâce à notre approche personnalisée, vous avez la possibilité de choisir chaque aspect de la construction de votre maison afin de créer un espace qui vous ressemble vraiment, tout étant accompagné et guidé.
De l’intérieur à l’extérieur de votre maison…tout est personnalisable.
Êtes-vous prêts à concrétiser votre rêve de maison individuelle qui répondra à tous vos besoins ?
Ne tardez pas, venez à notre rencontre :
Nous sommes Batisseurs Bourguignons, le numéro 1 de la construction de maisons individuelles dans la région.
Ensemble, construisons votre projet !









