Maison “Cornaline”
- Maison à étage
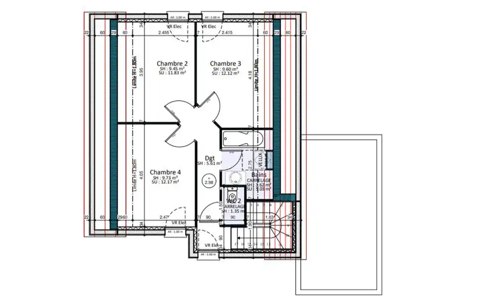
- 4 Chambres
- 99.5m²
Maison individuelle à étage
Une maison moderne idéale pour les familles
Choisissez la sophistication avec cette maison moderne à étage, conçue pour répondre à toutes vos attentes.
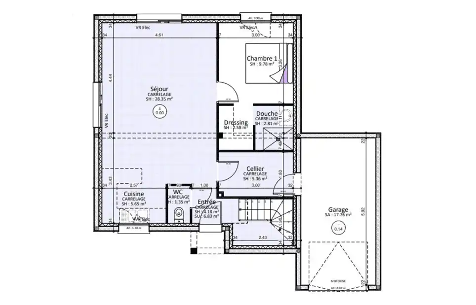
Cette magnifique maison, pensée et créée avec soin pour vous, vous offrira des espaces adaptés à votre famille, notamment une grande pièce de vie.
Notre bureau d’études a imaginé cette maison dotée d’un garage, d’un cellier et d’une grande suite parentale avec un dressing et une salle de bain privative.
- 99.5m² Habitable
- 4 chambres dont une suite parentale
- Garage
- Cellier
- 100% personnalisable
Cette belle maison contemporaine comprend :
- 3 chambres dont une suite parentale avec salle de bain
- Une grande pièce de vie avec un confortable espace de jour.
- Une cuisine.
- Un cellier.
- Un garage intégré.
Grâce à notre approche personnalisée, vous avez la possibilité de choisir chaque aspect de la construction de votre maison afin de créer un espace qui vous ressemble vraiment, tout étant accompagné et guidé.
De l’intérieur à l’extérieur de votre maison…tout est personnalisable.
Êtes-vous prêts à concrétiser votre rêve de maison individuelle qui répondra à tous vos besoins ?
Ne tardez pas, venez à notre rencontre :
Nous sommes Batisseurs Bourguignons, le numéro 1 de la construction de maisons individuelles dans la région.
Ensemble, construisons votre projet !









