Maison “Galène”
- Maison à étage
- 4 Chambres
- 125m²
Maison individuelle à étage
Une maison moderne idéale pour les familles
Laissez-vous séduire par la modernité de cette splendide maison à étage, créée pour répondre à toutes vos attentes. Cette magnifique demeure vous offre de grands espaces lumineux et adaptés à chacun des membres de votre famille.
Notre bureau d’études a imaginé cette maison dotée de deux grandes terrasses et d’une suite parentale, vous offrant un confort maximum.
- 125m² Habitable
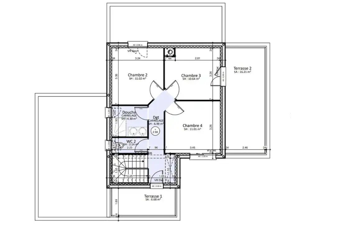
- 4 chambres dont une suite parentale
- Garage
- Cellier
- 100% personnalisable
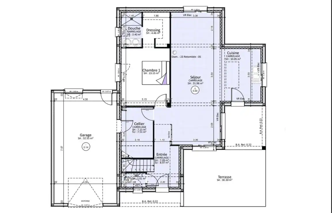
Cette belle maison contemporaine comprend :
- 4 chambres dont une suite parentale avec salle de bain
- Une grande pièce de vie avec un confortable espace de jour.
- Une cuisine.
- Un cellier.
- Un garage intégré.
Grâce à notre approche personnalisée, vous avez la possibilité de choisir chaque aspect de la construction de votre maison afin de créer un espace qui vous ressemble vraiment, tout étant accompagné et guidé.
De l’intérieur à l’extérieur de votre maison…tout est personnalisable.
Êtes-vous prêts à concrétiser votre rêve de maison individuelle qui répondra à tous vos besoins ?
Ne tardez pas, venez à notre rencontre :
Nous sommes Batisseurs Bourguignons, le numéro 1 de la construction de maisons individuelles dans la région.
Ensemble, construisons votre projet !













