Maison “Hématite”
- Maison à étage
- 4 Chambres
- 134m²
Maison individuelle à étage
Une maison moderne idéale pour les familles
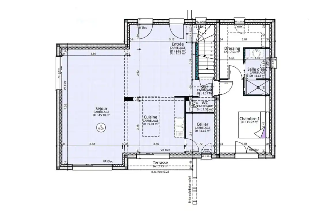
Laissez-vous séduire par la sophistication de cette magnifique maison moderne à étage, conçue pour répondre à toutes vos attentes. Cette maison a parfaitement été pensée et conçue pour vous, afin de vous offrir de beaux volumes adaptés à votre famille, notamment une grande pièce de vie.
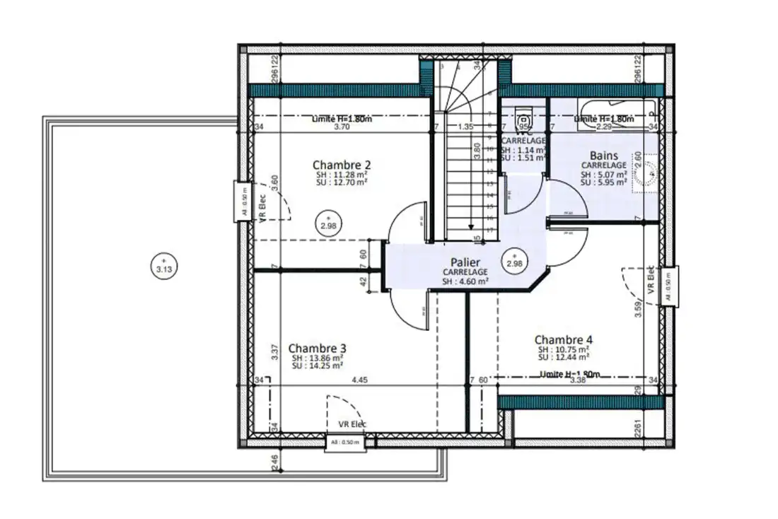
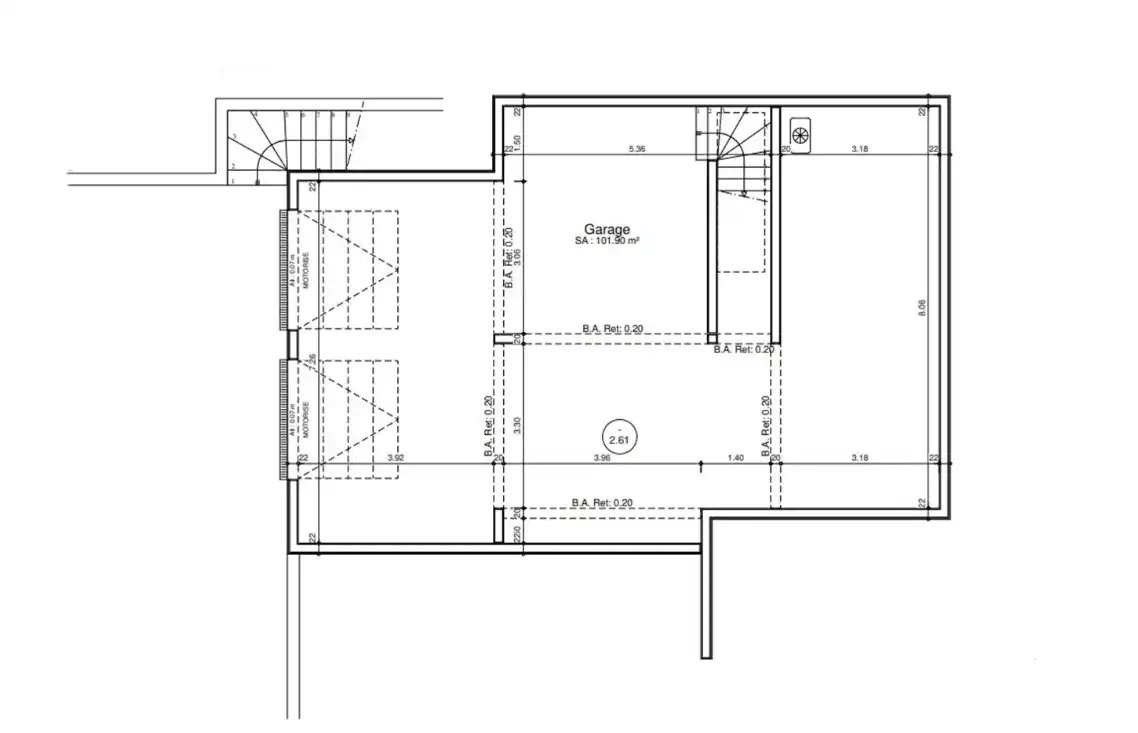
Notre bureau d’études a imaginé cette maison dotée d’un très grand garage en sous-sol et d’une suite parentale avec dressing et salle de bain pour répondre à votre besoin de calme et de confort.
- 134m² Habitable
- 4 chambres dont une suite parentale
- Garage
- Cellier
- 100% personnalisable
Cette belle maison contemporaine comprend :
- 4 chambres dont une suite parentale avec salle de bain
- Une grande pièce de vie avec un confortable espace de jour.
- Une cuisine.
- Un cellier.
- Un garage en sous-sol intégré.
Grâce à notre approche personnalisée, vous avez la possibilité de choisir chaque aspect de la construction de votre maison afin de créer un espace qui vous ressemble vraiment, tout étant accompagné et guidé.
De l’intérieur à l’extérieur de votre maison…tout est personnalisable.
Êtes-vous prêts à concrétiser votre rêve de maison individuelle qui répondra à tous vos besoins ?
Ne tardez pas, venez à notre rencontre :
Nous sommes Batisseurs Bourguignons, le numéro 1 de la construction de maisons individuelles dans la région.
Ensemble, construisons votre projet !










