Maison “Obsidienne”
- Maison à étage
- 3 Chambres
- 113m²
Maison contemporaine à étage
Une maison moderne idéale pour les familles
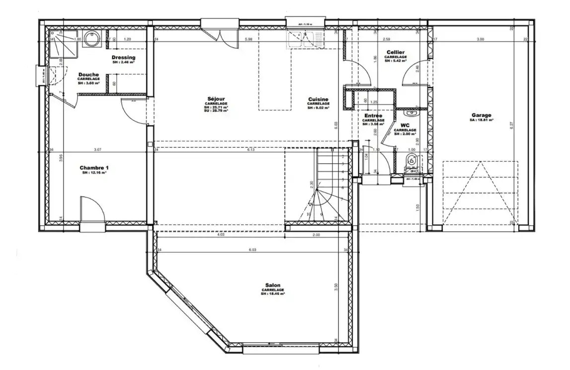
Laissez-vous séduire par la sophistication d’une maison moderne à étage, conçue pour répondre à toutes vos attentes. Cette magnifique maison et son architecture inédite ont été parfaitement pensées et créées pour offrir des espaces à la fois confortables et pratiques d’utilisation. Vous trouverez à l’intérieur une spacieuse pièce de vie avec salon-séjour et cuisine ouverte.
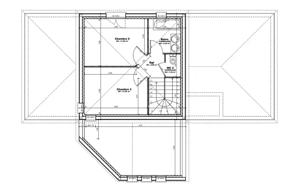
Notre bureau d’études a imaginé cette maison à étage dotée d’une suite parentale généreuse qui répondra à votre besoin de tranquillité et d’intimité. Elle comprend un spacieux dressing et une salle de bain attenante, offrant un confort optimal.
- 113m² Habitable
- 3 chambres dont une suite parentale
- Garage
- Cellier
- 100% personnalisable
Cette belle maison contemporaine comprend :
- 3 chambres dont une suite parentale avec salle de bain.
- Une grande pièce de vie avec un confortable espace de jour.
- Une cuisine.
- Un cellier.
- Un garage intégré.
Grâce à notre approche personnalisée, vous avez la possibilité de choisir chaque aspect de la construction de votre maison afin de créer un espace qui vous ressemble vraiment, tout étant accompagné et guidé.
De l’intérieur à l’extérieur de votre maison…tout est personnalisable.
Êtes-vous prêts à concrétiser votre rêve de maison individuelle qui répondra à tous vos besoins ?
Ne tardez pas, venez à notre rencontre :
Nous sommes Batisseurs Bourguignons, le numéro 1 de la construction de maisons individuelles dans la région.
Ensemble, construisons votre projet !








