Maison “Onyx”
- Maison plain pied
- 3 Chambres
- 129m²
Maison individuelle modèle "Onyx"
Une maison moderne idéale pour les familles
Laissez-vous séduire par la modernité de cette maison de plain-pied, conçue pour répondre à toutes vos attentes. Cette magnifique demeure, parfaitement pensée et créée avec de beaux volumes, offre de grands espaces adaptés à chacun.
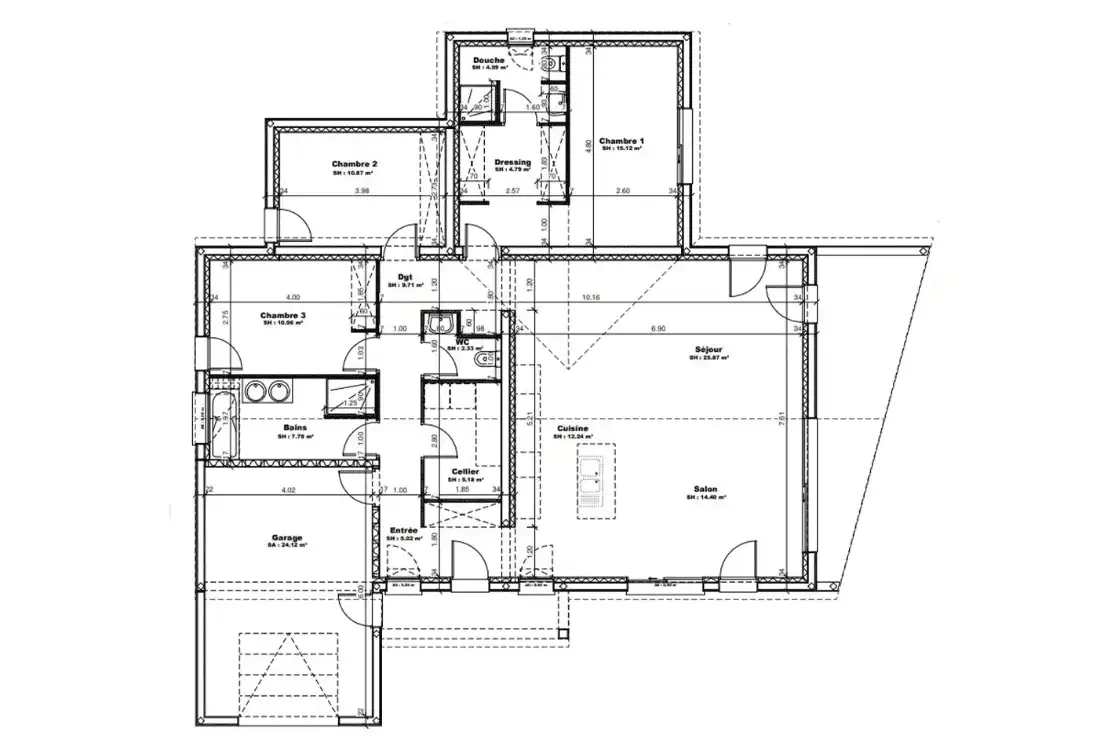
Notre bureau d’études a imaginé cette maison dotée d’une magnifique terrasse et d’une généreuse suite parentale qui répondra à votre besoin de tranquillité et d’intimité. Elle comprend un spacieux dressing et une salle de bain attenante, offrant un confort optimal.
- 129m² Habitable
- 3 chambres dont une suite parentale
- Garage
- Cellier
- 100% personnalisable
Cette belle maison moderne comprend :
- 3 chambres dont une suite parentale avec salle de bain
- Une grande pièce de vie avec un confortable espace de jour.
- Une cuisine ouverte.
- Un cellier.
- Un garage intégré.
Grâce à notre approche personnalisée, vous avez la possibilité de choisir chaque aspect de la construction de votre maison afin de créer un espace qui vous ressemble vraiment, tout étant accompagné et guidé.
De l’intérieur à l’extérieur de votre maison…tout est personnalisable.
Êtes-vous prêts à concrétiser votre rêve de maison individuelle qui répondra à tous vos besoins ?
Ne tardez pas, venez à notre rencontre :
Nous sommes Batisseurs Bourguignons, le numéro 1 de la construction de maisons individuelles dans la région.
Ensemble, construisons votre projet !










